Verkaufsfläche: EG ca. 220 m²
   
   

Gewerberäume in zentraler Lage zu vermieten

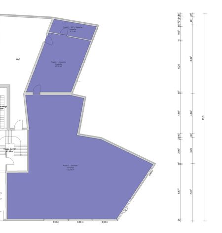
Zur Vermietung stehen diese Gewerberäume, Lindenplatz 3 in 38350 Helmstedt, in einem historischen Fachwerkhaus mit einer Fläche von 220m². Die attraktive Ladenfläche in Helmstedts Zentrum ist direkt am Eingang zum Holzberg, der ausreichend Parkmöglichkeiten für Ihre Kunden bietet. Die großen Schaufensterflächen ermöglichen eine gute Sichtbarkeit für Ihre Kunden. Diese vielseitig nutzbare Fläche bietet zahlreiche Möglichkeiten für Ihr Geschäftskonzept. Eine Toilette ist vorhanden. Die Räumlichkeiten sind vielseitig nutzbar, wie z.B. als Büro, Praxis oder auch für den Einzelhandel.
Eine Installation einer Abluftanlage für Gastronomie ist nicht möglich. Keine Vermietung an Kiosk, Imbiss, Friseur, Spielhalle.
Es ist ein Wasseranschluss mit Zähler, eigener Stromanschluss mit Zähler, sowie eine Brennwertgastherme (2019) mit eigenem Erdgaszähler für die Mieträume vorhanden.
220 m² 2 Räume: separatem WC,
eigene Brennwert-Gastherme,
Stromanschluss und
Wasseranschluss, jeweils mit Zähler
Bitte teilen Sie uns bei Ihrer Anfrage mit, um welche Art der Nutzung es sich bei Ihnen handelt

Kontakt: lindenplatz.he@gmail.com 

05351/17-2011

Die städtische Wirtschaftsförderung ...

...ist als Schnittstelle zwischen der Wirtschaft und der Stadtverwaltung zu sehen.

Unternehmen, die Fragen und Probleme haben, erhalten hier Informationen und Beratung. Egal, ob Sie geeignete Betriebsräume oder Grundstücke suchen, ob Sie Auskünfte über Fördermöglichkeiten wünschen oder ob nur die Frage auftaucht: Wer ist jetzt zuständig? 

Wir möchten Ihnen helfen, sich im Behörden-Dschungel zurechtzufinden. Unsere Hilfe steht Ihnen auch zur Verfügung, wenn es gilt, Kontakte herzustellen, Angelegenheiten zu koordinieren oder mit Institutionen zu kooperieren. 

Rufen Sie uns einfach an oder schicken Sie uns eine E-Mail mit Ihren Fragen an wirtschaftsfoerderung(at)stadt-helmstedt.de

Die Edelhöfe

Zusammen mit der Stadt Helmstedt entwickelt die Kreis-Wohnungsbaugesellschaft Helmstedt mbH ein aktives Flächenmanagement. Hieraus folgern verschiedene Thesen zur Stadtentwicklung, die in einem Leitbild zusammen gefasst wurden und die wir Ihnen über diesen Link zum Nachlesen anbieten.

Bauen - Wohnen - Leben

Stadtverwaltung Helmstedt
E-Mail:     rathaus@stadt-helmstedt.de
Telefon:   05351 17-0
Fax:        05351 17-7001
Öffnungszeiten
Montag bis Freitag 9.00 bis 12.00 Uhr

Hier klicken für das Telefonverzeichnis

Tourismus/Bürgerinfo:
E-Mail:     tourismus@stadt-helmstedt.de
Telefon:   05351 171717
Fax:        05351 171718

Öffnungszeiten Bürgerbüro Helmstedt
Montag: 08.00 bis 12.00 Uhr
Dienstag: 08.00 bis 12.00 Uhr & 15.00 Uhr bis 17.00 Uhr
Mittwoch: nur nach Terminvereinbarung
Donnerstag: 08.00 bis 12.00 Uhr & 14.00 Uhr bis 16.00 Uhr
Freitag: nur nach Terminvereinbarung
Samstag: bitte hier klicken

Öffnungszeiten Bürgerbüro Büddenstedt
Montag: 14:00 bis 16:00 Uhr

© 2026 Stadt Helmstedt ǀ Impressum  ǀ Datenschutz  ǀ Sitemap