Seit dem 15.07.2020 ist das Sanierungsgebiet rechtskräftig bekanntgemacht. Ab diesem Zeitpunkt besteht für Eigentümer die Möglichkeit für Sanierungsmaßnahmen an ihren Gebäuden erhöhte Steuerabschreibungen zu nutzen.

Hinsichtlich weiterer Informationen wird auf die Datei „Zusammenstellung Sanierungsmaßnahmen“ verwiesen.

Wen kann ich fragen?

Frau Laura Kasten   

mail: Laura-Christin.Kasten@stadt-helmstedt.de

Telefon: 05351 17 5212

Frau Louisa Biston

mail: louisa.biston@stadt-helmstedt.de

Telefon: 05351 17 5201

Die städtische Wirtschaftsförderung ...

...ist als Schnittstelle zwischen der Wirtschaft und der Stadtverwaltung zu sehen.

Unternehmen, die Fragen und Probleme haben, erhalten hier Informationen und Beratung. Egal, ob Sie geeignete Betriebsräume oder Grundstücke suchen, ob Sie Auskünfte über Fördermöglichkeiten wünschen oder ob nur die Frage auftaucht: Wer ist jetzt zuständig? 

Wir möchten Ihnen helfen, sich im Behörden-Dschungel zurechtzufinden. Unsere Hilfe steht Ihnen auch zur Verfügung, wenn es gilt, Kontakte herzustellen, Angelegenheiten zu koordinieren oder mit Institutionen zu kooperieren. 

Rufen Sie uns einfach an oder schicken Sie uns eine E-Mail mit Ihren Fragen an wirtschaftsfoerderung(at)stadt-helmstedt.de

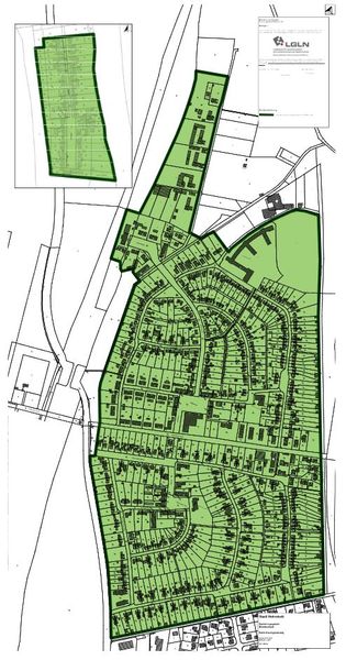
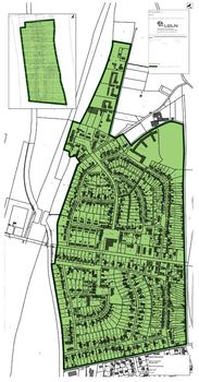
Die Edelhöfe

Zusammen mit der Stadt Helmstedt entwickelt die Kreis-Wohnungsbaugesellschaft Helmstedt mbH ein aktives Flächenmanagement. Hieraus folgern verschiedene Thesen zur Stadtentwicklung, die in einem Leitbild zusammen gefasst wurden und die wir Ihnen über diesen Link zum Nachlesen anbieten.

Bauen - Wohnen - Leben

Stadtverwaltung Helmstedt
E-Mail:     rathaus@stadt-helmstedt.de
Telefon:   05351 17-0
Fax:        05351 17-7001
Öffnungszeiten
Montag bis Freitag 9.00 bis 12.00 Uhr

Hier klicken für das Telefonverzeichnis

Tourismus/Bürgerinfo:
E-Mail:     tourismus@stadt-helmstedt.de
Telefon:   05351 171717
Fax:        05351 171718

Öffnungszeiten Bürgerbüro Helmstedt
Montag: 08.00 bis 12.00 Uhr
Dienstag: 08.00 bis 12.00 Uhr & 15.00 Uhr bis 17.00 Uhr
Mittwoch: nur nach Terminvereinbarung
Donnerstag: 08.00 bis 12.00 Uhr & 14.00 Uhr bis 16.00 Uhr
Freitag: nur nach Terminvereinbarung
Samstag: bitte hier klicken

Öffnungszeiten Bürgerbüro Büddenstedt
Montag: 14:00 bis 16:00 Uhr

© 2026 Stadt Helmstedt ǀ Impressum  ǀ Datenschutz  ǀ Sitemap